Island Place, Gould Road, Salcombe, Devon, TQ8 8FN
Guide Price* : £40,000
Prime freehold mixed use ground rent investment opportunity
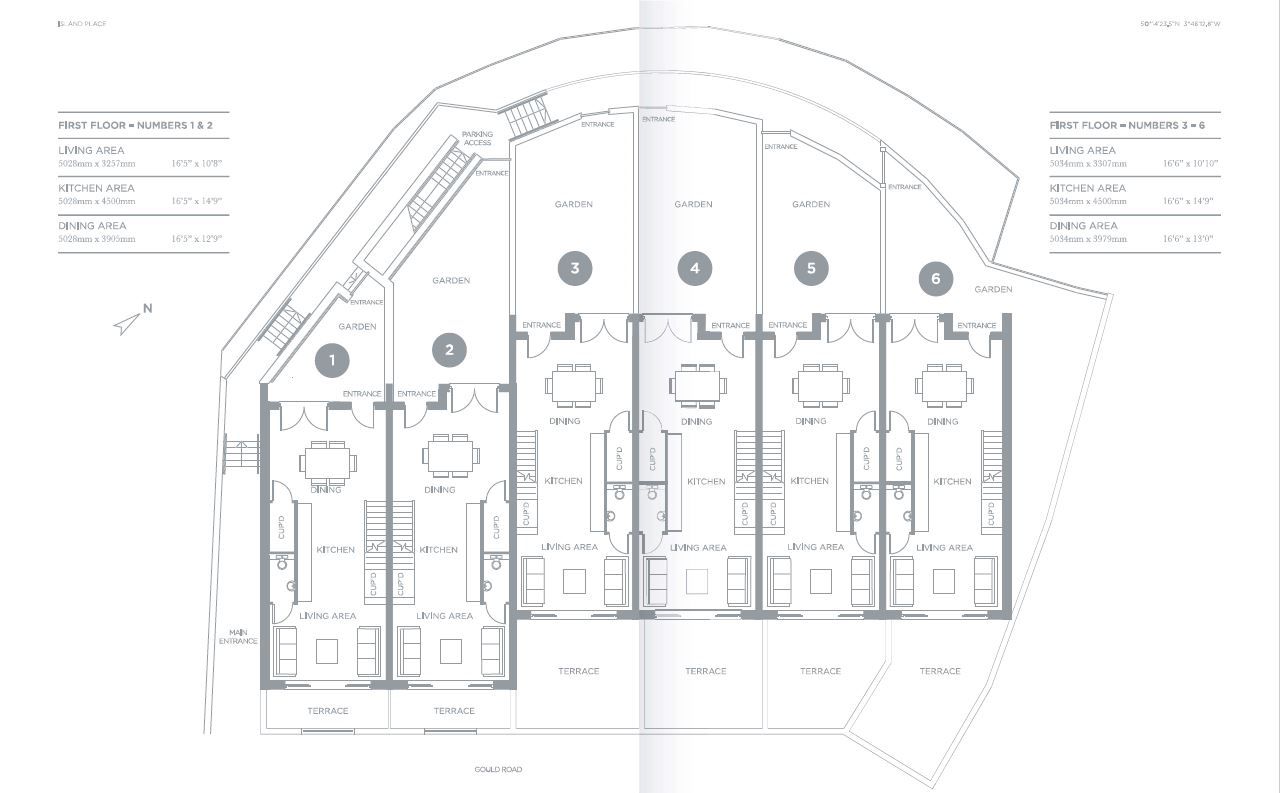
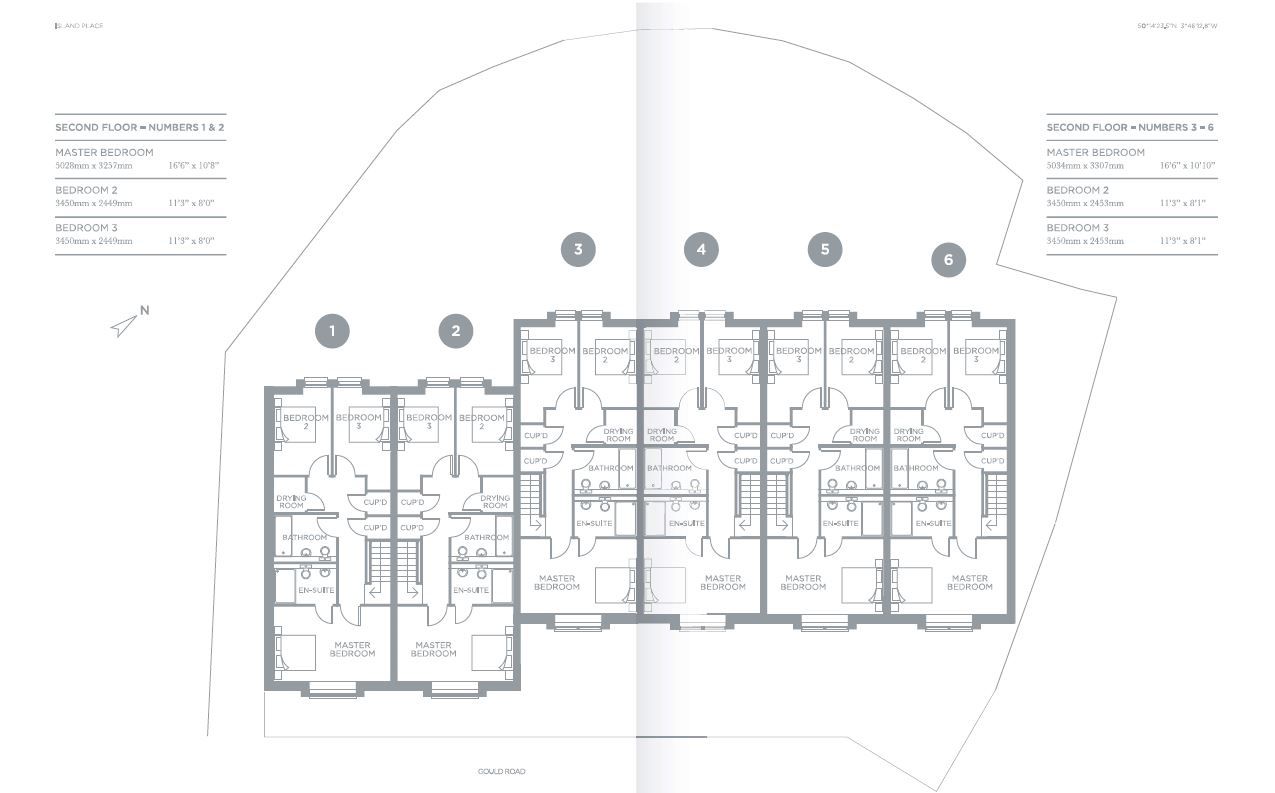
- 6 high-end residential units
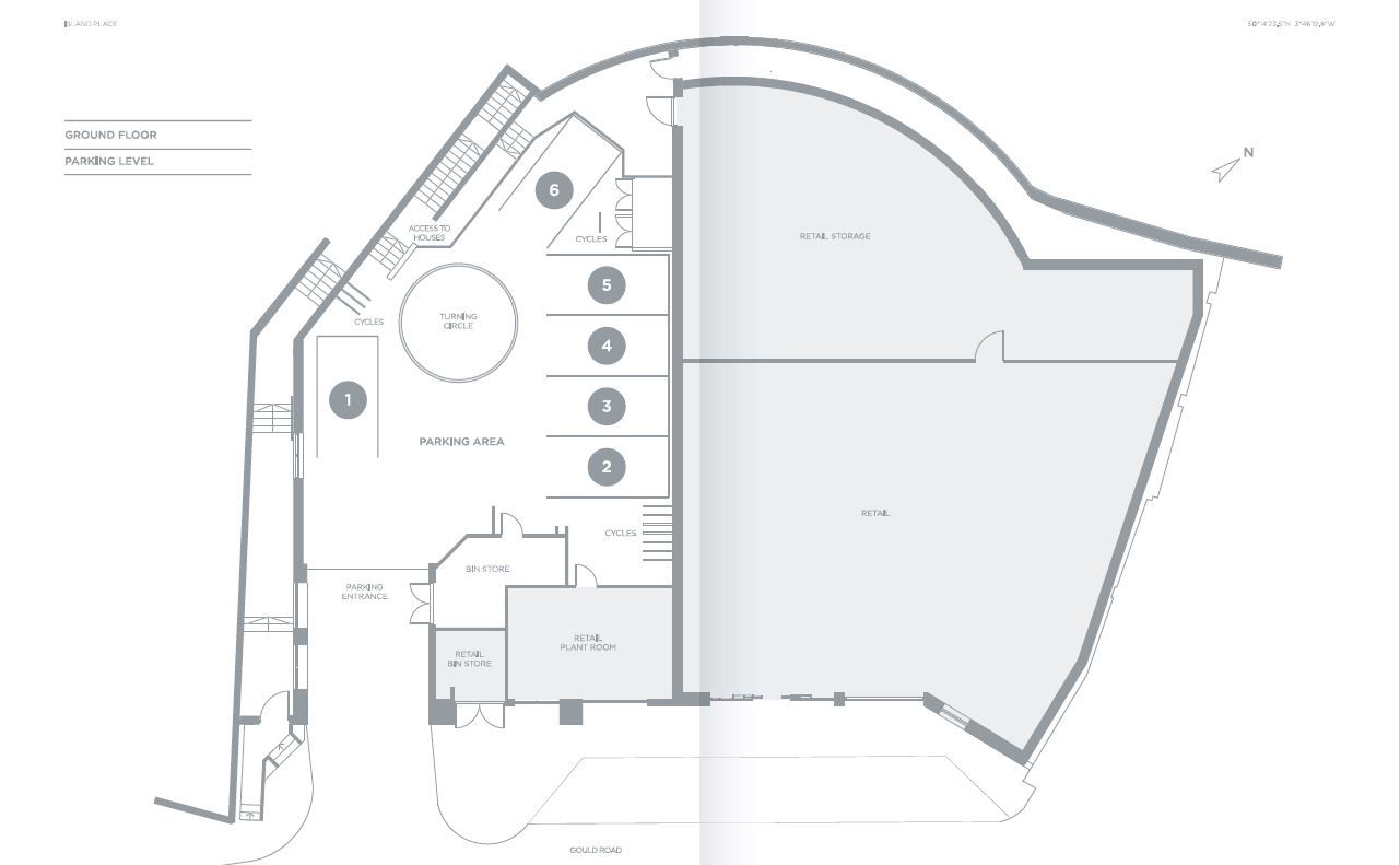
- The property comprises 6 high end residential units over a ground floor commercial convenience store unit, let to the Co-Op
- Each of the 7 units has been granted a 999 year lease subject to an initial ground rent of £250 per annum
- Current total ground rent income of £1,750 per annum, benefiting from 10 yearly RPI index linked review provisions
- Clean Management Company structure removing all landlord responsibility in respect of building management
Description
Island Place is a unique high end development benefiting from a prime and prominent position in relation Salcombe town centre and waterfront.
The property comprises a ground floor convenience retail unit, positioned below a brand new two storey residential development comprising 6 high quality houses. The exclusive
development has been designed and constructed in line with the coastal setting, using local materials to provide superior specification accommodation in an unrivalled position.
Situated on Gould Road on the north west side of the town centre, in immediate proximity of the waterfront and subsequent amenities. The property benefits from heavy pedestrian flow by virtue of immediate proximity to the towns only short stay and long stay parking provisions; Shadycombe Car Park directly opposite and The Creek Car Park immediately adjacent.
Location
Salcombe is an extremely affluent and popular coastal town in the South Hams district of Devon, south west England. The town lies on the banks of the Salcombe Estuary and it widely regarded as one of the prettiest towns in South Devon and one of the UK’s most desirable waterside destinations, known for its exceptional coastal views and position within an Area of Outstanding National Beauty (AONB).
The town’s extensive waterfront and naturally sheltered harbour formed by the estuary have made the location hugely successful as a maritime haven, with a thriving economy centred around pleasure sailing and yachting. The town is a major tourism destination, with a peak season population extending to nearly 25,000 and approximately 39% of all households being classified as second or holiday homes.
The local economy caters for affluent clientele, with a range of boutique retailers, art galleries, nautical associated businesses and an abundance of places to eat and drink. The town is accessed via the A381, which in turn links with the A38, providing connectivity to Plymouth and Cornwall in the west and the M5 at Junction 31 at Exeter in the east.
Tenure
Freehold
Tenancy
Each of the 6 residential units and the commercial unit have been granted a 999 year interest from 1 January 2018, each paying an initial ground rent of £250 per annum and providing a total initial ground rent of £1,750 per annum. The rent is to be reviewed on 1 January 2028 and every 10 years thereafter, in line with RPI.
The Freehold interest has granted an Overriding Lease (999 years) of the property in its entirety to the long leasehold tenants' Management Company.
The Overriding Lease imposes an obligation on the Management Company to carry out all of the Landlord’s obligations contained in the individual long leasehold interests e.g. with regard to building insurance, repair and maintenance.
Under the Overriding Lease the Management Company is required to pay an annual rent to the Freeholder. This is expressed to be the aggregate of the yearly sums reserved in the residential and commercial leases.
VAT
The property is elected for VAT
Vendor's solicitor
* Generally speaking Guide Prices are provided as an indication of each seller's minimum expectation, i.e. 'The Reserve'. They are not necessarily figures which a property will sell for and may change at any time prior to the auction. Virtually every property will be offered subject to a Reserve (a figure below which the Auctioneer cannot sell the property during the auction) which we expect will be set within the Guide Range or no more than 10% above a single figure Guide.
** If you take up this service, Dynamo may pay a referral payment of up to 20% of the procuration fee received by Dynamo from the relevant lender on completion of the mortgage to us. This is not paid by you and has no impact on the service provided. Dynamo is a trading name of Dynamo Mortgages Limited, which is part of the same group of companies as Lambert Smith Hampton, owned by Connells Limited.
If you take up this service you will agree your own separate contract with Dynamo, and Lambert Smith Hampton is not responsible for the accuracy, quality or suitability of any advice, recommendations or services provided to you.
Loading the bidding panel...
The successful purchaser will be required to pay the auctioneers administration fee of £990.00 inclusive of VAT. Other additional costs / fees may apply. - Click here.
Vendors Solicitor
Related Documents
Agreement Documents
Additional Documents
Finance Available **
Make an enquirySubject to Contract and Exclusive of VAT © Lambert Smith Hampton February 2026
Disclaimer: Lambert Smith Hampton Group Limited and its subsidiaries, including LSH Property Auctions, and their joint agents if any (“LSH”) for themselves and for the seller or landlord of the property whose agents they are give notice that: (i) These particulars are given and any statement about the property is made without responsibility on the part of LSH or the seller or landlord and do not constitute the whole or any part of an offer or contract. (ii) Any description, dimension, distance or area given or any reference made to condition, working order or availability of services or facilities, fixtures or fittings, any guarantee or warrantee or statutory or any other permission, approval or reference to suitability for use or occupation, photograph, plan, drawing, aspect or financial or investment information or tenancy and title details or any other information set out in these particulars or otherwise provided shall not be relied on as statements or representations of fact or at all and any prospective buyer or tenant must satisfy themselves by inspection or otherwise as to the accuracy of all information or suitability of the property. (iii) No employee of LSH has any authority to make or give any representation or warranty arising from these particulars or otherwise or enter into any contract whatsoever in relation to the property in respect of any prospective purchase or letting including in respect of any re-sale potential or value or at all. (iv) Price or rent may be subject to VAT and any prospective buyer or tenant must satisfy themselves concerning the correct VAT position. (v) Except in respect of death or personal injury caused by the negligence of LSH or its employees or agents, LSH will not be liable, whether in negligence or otherwise howsoever, for any loss arising from the use of these particulars or any information provided in respect of the property save to the extent that any statement or information has been made or given fraudulently by LSH. (vi) In the case of new development or refurbishment prospective buyers or tenants should not rely on any artists’ impressions or architects’ drawings or specification or scope of works or amenities, infrastructure or services or information concerning views, character or appearance and timing concerning availability or occupation and prospective buyers or tenants must take legal advice to ensure that any expectations they may have are provided for direct with the seller or landlord and LSH shall have no liability whatsoever concerning any variation or discrepancy in connection with such matters.
By setting a proxy bid, the system will automatically bid on your behalf to maintain your position as the highest bidder, up to your proxy bid amount. If you are outbid, you will be notified via email so you can opt to increase your bid if you so choose.
If two of more users place identical bids, the bid that was placed first takes precedence, and this includes proxy bids.
Another bidder placed an automatic proxy bid greater or equal to the bid you have just placed. You will need to bid again to stand a chance of winning.