Birmingham East Delivery Office, 16 Humpage Road, Birmingham, West Midlands, B9 5HS
Guide Price : £250,000
FORMER ROYAL MAIL DELIVERY OFFICE
Upon Instructions of
- Freehold Former Royal Mail Delivery Office
- Approximately 785.30 Sq m (8,453 Sq ft) GIA
- On a Site of Approximately 0.138 Hectares (0.34 Acres)
- Development Potential (STP)
Description
The property comprises a part single, part two storey purpose built former Royal Mail delivery office, with ancillary office accommodation.
At ground floor level, there is a Sorting Office forming the main operational space, alongside ancillary areas including a Kitchen, Dining Room, and Garage. Additional rooms include a Callers Office, Locker Room, and various service areas such as toilets and stores.
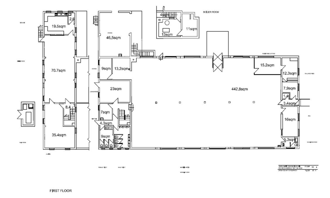
The first floor provides further accommodation including an Office, Kitchen and Mess Room and Store Rooms.
The unit benefits from good floor loading capacity and clear internal circulation. The property extends to approximately 785.30 Sq m (8,453 Sq ft) GIA.
Externally, the site benefits from secure yard areas used for parking (13 spaces), loading, and maneuvering, enclosed with perimeter fencing. Vehicular access is provided via dedicated loading and service areas and is on a site of approximately 0.138 hectares (0.34 acres).
Location
The property is located on Humpage Road in the Bordesley Green area of east Birmingham, within the administrative boundary of Birmingham City Council. The surrounding area is predominantly industrial and commercial, with pockets of residential development in the wider vicinity.
Humpage Road lies approximately 2 miles east of Birmingham city centre, which offers a comprehensive range of retail, leisure, and business amenities, including the Bullring and Grand Central shopping centres. Local amenities serving the immediate area are available along Bordesley Green and surrounding arterial routes.
The location benefits from good access to public transport, with regular bus services operating along Bordesley Green and Coventry Road providing direct connections to Birmingham city centre and surrounding districts. Birmingham Moor Street and Birmingham New Street railway stations are located approximately 2.5 miles to the west, offering regional and national rail services.
The property is situated close to the A45 (Coventry Road), providing direct access to Birmingham city centre to the west and Solihull and Coventry to the east. The A34 and A4040 are also within close proximity, and the wider motorway network, including the M6, M5, and M42, is accessible within a short driving distance, supporting efficient regional and national distribution.
Tenure
The property is held Freehold under Title Number WM868245.
Planning Authority
Birmingham City Council - www.birmingham.gov.uk
Bidder Registration
Hybrid Sale – How It Works for You
Our Hybrid Sale combines traditional marketing with an online platform for speed and completion under an auction contract.
Our client is seeking informal Best and Final offers by 18 February 2026 with exchange to take place on 25 February 2026 and completion by 25 March 2026.
1. Register Interest
Register your interest with us so we can keep you up to date with the property you are interested in.
2. Review Information
You will get access to our secure data room with all legal documents to enable you to carry out your full due diligence.
3. Submit Your Bid (By 18 February 2026)
We will confirm a Best Bids deadline which will be 18 February 2026. You will need to include
• Your Bid Amount
• The Buyer Entity
• Your Proof of Funds
4. Secure The Deal (Exchange of Contracts 25 February 2026)
If you are the successful party, you will be sent an email to invite you to ‘Exchange’ on the property on 25 February 2026 and pay a Holding Deposit of £5,000. You will then be required to pay the balance of the 10% deposit and Buyer's Fee of £1,500 plus VAT within 2 days.
5. Complete the Sale (25 March 2026)
Completion will be on 25 March 2026 (20 working days after exchange).
VAT
Refer to the legal documentation
Energy Performance Certificate
D:97
Note
Vacant possession upon completion.
Contact
Loading the bidding panel...
The successful purchaser will be required to pay the auctioneers administration fee of £1,800 inclusive of VAT on purchases of £20,000 and above and £600 inclusive of VAT for purchases below £20,000. Other additional costs/fees may apply - Click here.
Office Contact
Vendor
Related Documents
Legal Documents
Log in to view legal documentsAgreement Documents
Additional Documents
Finance Available **
Make an enquirySubject to Contract and Exclusive of VAT © Lambert Smith Hampton February 2026
Disclaimer: Lambert Smith Hampton Group Limited and its subsidiaries, including LSH Property Auctions, and their joint agents if any (“LSH”) for themselves and for the seller or landlord of the property whose agents they are give notice that: (i) These particulars are given and any statement about the property is made without responsibility on the part of LSH or the seller or landlord and do not constitute the whole or any part of an offer or contract. (ii) Any description, dimension, distance or area given or any reference made to condition, working order or availability of services or facilities, fixtures or fittings, any guarantee or warrantee or statutory or any other permission, approval or reference to suitability for use or occupation, photograph, plan, drawing, aspect or financial or investment information or tenancy and title details or any other information set out in these particulars or otherwise provided shall not be relied on as statements or representations of fact or at all and any prospective buyer or tenant must satisfy themselves by inspection or otherwise as to the accuracy of all information or suitability of the property. (iii) No employee of LSH has any authority to make or give any representation or warranty arising from these particulars or otherwise or enter into any contract whatsoever in relation to the property in respect of any prospective purchase or letting including in respect of any re-sale potential or value or at all. (iv) Price or rent may be subject to VAT and any prospective buyer or tenant must satisfy themselves concerning the correct VAT position. (v) Except in respect of death or personal injury caused by the negligence of LSH or its employees or agents, LSH will not be liable, whether in negligence or otherwise howsoever, for any loss arising from the use of these particulars or any information provided in respect of the property save to the extent that any statement or information has been made or given fraudulently by LSH. (vi) In the case of new development or refurbishment prospective buyers or tenants should not rely on any artists’ impressions or architects’ drawings or specification or scope of works or amenities, infrastructure or services or information concerning views, character or appearance and timing concerning availability or occupation and prospective buyers or tenants must take legal advice to ensure that any expectations they may have are provided for direct with the seller or landlord and LSH shall have no liability whatsoever concerning any variation or discrepancy in connection with such matters.
By setting a proxy bid, the system will automatically bid on your behalf to maintain your position as the highest bidder, up to your proxy bid amount. If you are outbid, you will be notified via email so you can opt to increase your bid if you so choose.
If two of more users place identical bids, the bid that was placed first takes precedence, and this includes proxy bids.
Another bidder placed an automatic proxy bid greater or equal to the bid you have just placed. You will need to bid again to stand a chance of winning.