The Knighton Hotel, Broad Street, Knighton, Powys, LD7 1BL
Guide Price* : £499,000 plus
18 Room Guest House
- Prominent Town Centre Location
- 18 Ensuite Bedrooms
- Grade II Listed Historic Building
- Off-Road Parking
- Spacious Hotel with Banqueting Facilities
- Owners Two Bedroom Accommodation
Description
The Knighton Hotel is a predominantly stone built property connected to a former Tudor coaching inn. The building incorporates original architectural features, including double‑height ceilings, a galleried landing, a staircase, exposed timber beams and stone walls.
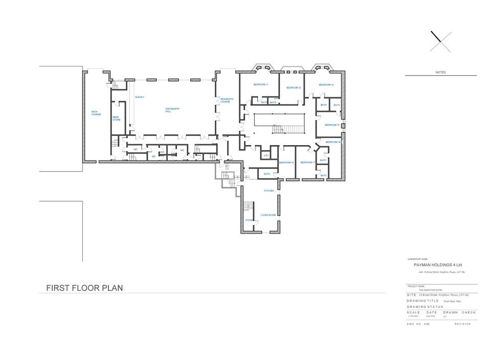
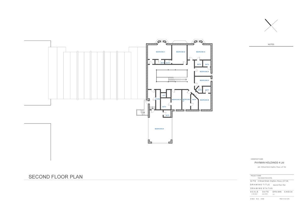
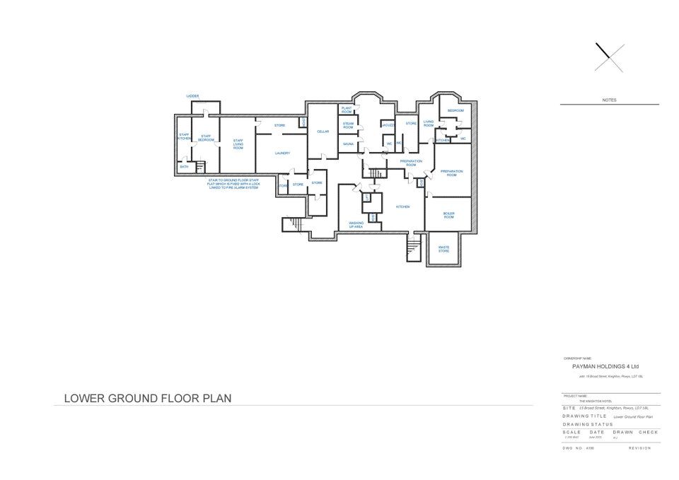
The accommodation is arranged over four floors and comprises 18 guest rooms of various types, including standard, superior, deluxe, suites, family rooms and a self‑catering two‑bedroom apartment with a kitchen. The ground floor contains the principal public areas, including a dining room, café area and public bar. The kitchen is located in the basement, along with a range of additional ancillary rooms. A large historic banqueting hall is also present, recently restored, and understood to have previously functioned as the town hall.
Externally, the property provides on‑site parking for approximately six to eight vehicles and is adjacent to a larger town centre pay‑and‑display car park.
The total site area is approximately 0.096 hectares (0.236 acres).
Location
The Knighton Hotel is centrally located on Broad Street in a historic border town with excellent walking access, convenient transport links, and cultural sites, all within a short distance on foot.
A historic market town on the border, Knighton is known as the “Town on Offa’s Dyke,” straddling the England/Wales border and lying along the River Teme. The hotel is just a few minutes’ walk from the starting points of both the Offa’s Dyke Path and Glyndŵr’s Way which is ideal for walkers and outdoor enthusiasts. You’re just steps from the Offa’s Dyke Centre on West Street, plus local attractions like the Spaceguard Observatory and Knighton Museum are within easy reach.
Knighton Railway Station is around a 10-minute walk away on the scenic, 'Heart of Wales' line. The local bus station is only five minutes on foot. Knighton sits at the junction of the A4113 and A488 roads, approximately midway between Shrewsbury and Hereford, making it easily accessible by car. Further towns and cities within easy reach include:
Tenure
Freehold
Planning Authority
Powys County Council - en.powys.gov.uk
Accommodation Summary
There is a two-bedroom apartment which could be used as owner's accommodation. This apartment is in need of some refurbishment.
Bidder Registration
Registration for bidding will close at 2:00 pm the day before the auction, after which we cannot guarantee giving you permission to bid at the auction.
VAT
Refer to the legal documentation
Energy Performance Certificate
D;87
Note
Having operated for many years as a successful hotel, it already offers rooms, communal spaces, function facilities, and a bar/restaurant. Other uses include apartments, both short hold rentals and holiday rentals, mixed-use commercial or even residential subject to the relevant consents.
The Auctioneer has not inspected internally and the website information has been provided by the Joint Agent.
Contact
Joint auctioneers
* Generally speaking Guide Prices are provided as an indication of each seller's minimum expectation, i.e. 'The Reserve'. They are not necessarily figures which a property will sell for and may change at any time prior to the auction. Virtually every property will be offered subject to a Reserve (a figure below which the Auctioneer cannot sell the property during the auction) which we expect will be set within the Guide Range or no more than 10% above a single figure Guide.
** If you take up this service, Dynamo may pay a referral payment of up to 20% of the procuration fee received by Dynamo from the relevant lender on completion of the mortgage to us. This is not paid by you and has no impact on the service provided. Dynamo is a trading name of Dynamo Mortgages Limited, which is part of the same group of companies as Lambert Smith Hampton, owned by Connells Limited.
If you take up this service you will agree your own separate contract with Dynamo, and Lambert Smith Hampton is not responsible for the accuracy, quality or suitability of any advice, recommendations or services provided to you.
Loading the bidding panel...
The successful purchaser will be required to pay the auctioneers administration fee of £1,800 inclusive of VAT on purchases of £20,000 and above and £600 inclusive of VAT for purchases below £20,000. Other additional costs/fees may apply - Click here.
Joint Agent
Office Contact
Legal Documents
Log in to view legal documentsAgreement Documents
Additional Documents
Finance Available **
Make an enquirySubject to Contract and Exclusive of VAT © Lambert Smith Hampton February 2026
Disclaimer: Lambert Smith Hampton Group Limited and its subsidiaries, including LSH Property Auctions, and their joint agents if any (“LSH”) for themselves and for the seller or landlord of the property whose agents they are give notice that: (i) These particulars are given and any statement about the property is made without responsibility on the part of LSH or the seller or landlord and do not constitute the whole or any part of an offer or contract. (ii) Any description, dimension, distance or area given or any reference made to condition, working order or availability of services or facilities, fixtures or fittings, any guarantee or warrantee or statutory or any other permission, approval or reference to suitability for use or occupation, photograph, plan, drawing, aspect or financial or investment information or tenancy and title details or any other information set out in these particulars or otherwise provided shall not be relied on as statements or representations of fact or at all and any prospective buyer or tenant must satisfy themselves by inspection or otherwise as to the accuracy of all information or suitability of the property. (iii) No employee of LSH has any authority to make or give any representation or warranty arising from these particulars or otherwise or enter into any contract whatsoever in relation to the property in respect of any prospective purchase or letting including in respect of any re-sale potential or value or at all. (iv) Price or rent may be subject to VAT and any prospective buyer or tenant must satisfy themselves concerning the correct VAT position. (v) Except in respect of death or personal injury caused by the negligence of LSH or its employees or agents, LSH will not be liable, whether in negligence or otherwise howsoever, for any loss arising from the use of these particulars or any information provided in respect of the property save to the extent that any statement or information has been made or given fraudulently by LSH. (vi) In the case of new development or refurbishment prospective buyers or tenants should not rely on any artists’ impressions or architects’ drawings or specification or scope of works or amenities, infrastructure or services or information concerning views, character or appearance and timing concerning availability or occupation and prospective buyers or tenants must take legal advice to ensure that any expectations they may have are provided for direct with the seller or landlord and LSH shall have no liability whatsoever concerning any variation or discrepancy in connection with such matters.
By setting a proxy bid, the system will automatically bid on your behalf to maintain your position as the highest bidder, up to your proxy bid amount. If you are outbid, you will be notified via email so you can opt to increase your bid if you so choose.
If two of more users place identical bids, the bid that was placed first takes precedence, and this includes proxy bids.
Another bidder placed an automatic proxy bid greater or equal to the bid you have just placed. You will need to bid again to stand a chance of winning.