26 High Street, Reigate, Surrey, RH2 9AY
Guide Price* : £1,100,000 plus
Freehold Retail and Residential Investment
- Freehold Retail and Residential Investment
- Popular Town in Surrey
- Approximately 320.40 sq m (3,449 sq ft)
- Site Area of Approximately 0.028 Hectares (0.069 Acres)
- Current Combined Income of £81,493.60 Per Annum
- Communal Garden to the Rear
Description
A three storey retail and residential investment comprising a shop and two modern 3 bedroom flats with communal garden to the rear.
Ground Floor - Retail
The retail element is approximately 106.50 sq m (1,146 sq ft) of sales accommodation and is occupied by Phase Eight (Fashion & Designs) Limited on a 10 year lease expiring 2032 at a rent of £40,000 per annum.
First Floor - Flat 1
Comprises three bedrooms (one with ensuite bathroom with WC), living room, kitchen and house bathroom and is approximately 100.40 sq m (1,081 sq ft). This flat is occupied under the terms of an Assured Shorthold Tenancy Agreement for a term of 24 months from 02/12/2024 at a rent of £20,400 per annum.
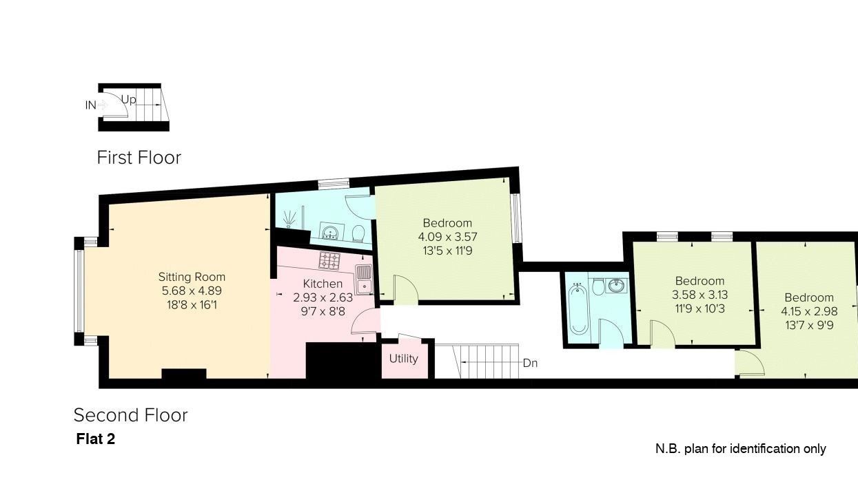
Second Floor - Flat 2
Comprises three bedrooms (one with ensuite bathroom with WC), living room, kitchen and house bathroom and is approximately 113.50 sq m (1,222 sq ft). This flat is occupied under the terms of an Assured Shorthold Tenancy Agreement for a term of 36 months from 08/02/2024 at a rent of £20,400 per annum. The current rent is £21,093.60 per annum, in line with the annual increases.
Location
The property occupies a prime position on the High Street in Reigate, which is a popular town in Surrey, approximately 10 miles north of Crawley, 26 miles east of Guilford and 30 miles south of Central London.
Reigate is within close proximity to the M25 Motorway (Junction 8) providing access to a number of major towns within Surrey with Gatwick airport being approximately 6 miles to the south.
Nearby occupiers include, Boots, FatFace, HSBC Bank, Pizza Express, Whistles, M&S Foodhall, Mint Velvet along with a number of local and multi-national retailers.
Tenure
Freehold.
Tenancy
Phase Eight (Fashion and Design Ltd) is a fashion retailer and part of The Foschini Group, which includes brands Hobbs and Whistles. They have a Dun & Bradstreet rating of 5A2 to 25/03/2023, Phase Eight (Fashion and Design Ltd) reported sales of £96.283m and pre-tax profits of £3.418m. A D&B report is available to view.
Planning Authority
Reigate and Banstead Borough Council - www.reigate-banstead.gov.uk
VAT
The property is elected for VAT
Energy Performance Certificate
Ground Floor Retail: C55
First Floor Flat: C74
Second Floor Flat: C74
Accommodation
*The property has not measured by LSH. The Accommodation details and floor areas have been provided by the Vendor.
| Floor | Use | SQ M | SQ FT | Tenant | Lease Terms | Rent £ PA |
|---|---|---|---|---|---|---|
| Ground | Retail | 106.50 | 1,146* | Phase Eight (Fashion and Designs) Limited | 10 years from 22.09.2022. Rent Review every Fifth Year. Effectively FRI with service charge contribution** | £40,000 |
| First | Residential (3 bedrooms) | 100.40 | 1,081* | Private Tenant - AST | 24 months from 02/12/2024 with mutual break 01/12/2025 |
£20,400 |
| Second | Residential (3 bedrooms) | 113.50 | 1,222* | Private Tenant - AST | 36 months from 08/02/2024 with an annual rent review linked RPI (3-8%) | £21,093.60*** |
Joint auctioneers
Joint auctioneers
* Generally speaking Guide Prices are provided as an indication of each seller's minimum expectation, i.e. 'The Reserve'. They are not necessarily figures which a property will sell for and may change at any time prior to the auction. Virtually every property will be offered subject to a Reserve (a figure below which the Auctioneer cannot sell the property during the auction) which we expect will be set within the Guide Range or no more than 10% above a single figure Guide.
** If you take up this service, Dynamo may pay a referral payment of up to 20% of the procuration fee received by Dynamo from the relevant lender on completion of the mortgage to us. This is not paid by you and has no impact on the service provided. Dynamo is a trading name of Dynamo Mortgages Limited, which is part of the same group of companies as Lambert Smith Hampton, owned by Connells Limited.
If you take up this service you will agree your own separate contract with Dynamo, and Lambert Smith Hampton is not responsible for the accuracy, quality or suitability of any advice, recommendations or services provided to you.
Loading the bidding panel...
The successful purchaser will be required to pay the auctioneers administration fee of £1,800 inclusive of VAT on purchases of £20,000 and above and £600 inclusive of VAT for purchases below £20,000. Other additional costs/fees may apply - Click here.
Joint Agent
Joint Agent
Related Documents
Agreement Documents
Additional Documents
Finance Available **
Make an enquirySubject to Contract and Exclusive of VAT © Lambert Smith Hampton November 2025
Disclaimer: Lambert Smith Hampton Group Limited and its subsidiaries, including LSH Property Auctions, and their joint agents if any (“LSH”) for themselves and for the seller or landlord of the property whose agents they are give notice that: (i) These particulars are given and any statement about the property is made without responsibility on the part of LSH or the seller or landlord and do not constitute the whole or any part of an offer or contract. (ii) Any description, dimension, distance or area given or any reference made to condition, working order or availability of services or facilities, fixtures or fittings, any guarantee or warrantee or statutory or any other permission, approval or reference to suitability for use or occupation, photograph, plan, drawing, aspect or financial or investment information or tenancy and title details or any other information set out in these particulars or otherwise provided shall not be relied on as statements or representations of fact or at all and any prospective buyer or tenant must satisfy themselves by inspection or otherwise as to the accuracy of all information or suitability of the property. (iii) No employee of LSH has any authority to make or give any representation or warranty arising from these particulars or otherwise or enter into any contract whatsoever in relation to the property in respect of any prospective purchase or letting including in respect of any re-sale potential or value or at all. (iv) Price or rent may be subject to VAT and any prospective buyer or tenant must satisfy themselves concerning the correct VAT position. (v) Except in respect of death or personal injury caused by the negligence of LSH or its employees or agents, LSH will not be liable, whether in negligence or otherwise howsoever, for any loss arising from the use of these particulars or any information provided in respect of the property save to the extent that any statement or information has been made or given fraudulently by LSH. (vi) In the case of new development or refurbishment prospective buyers or tenants should not rely on any artists’ impressions or architects’ drawings or specification or scope of works or amenities, infrastructure or services or information concerning views, character or appearance and timing concerning availability or occupation and prospective buyers or tenants must take legal advice to ensure that any expectations they may have are provided for direct with the seller or landlord and LSH shall have no liability whatsoever concerning any variation or discrepancy in connection with such matters.
By setting a proxy bid, the system will automatically bid on your behalf to maintain your position as the highest bidder, up to your proxy bid amount. If you are outbid, you will be notified via email so you can opt to increase your bid if you so choose.
If two of more users place identical bids, the bid that was placed first takes precedence, and this includes proxy bids.
Another bidder placed an automatic proxy bid greater or equal to the bid you have just placed. You will need to bid again to stand a chance of winning.