Basement, 83-85 George Street, Kingston upon Hull, City of Kingston upon Hull, HU1 3BN
Guide Price* : £30,000 plus
Large Basement Commercial Office Space with Grade II* Listed Building
- Large Basement Commercial Office Space
- Established Commercial and Residential Location
- Vacant Possession
- Approximately 235 sq m (2,522 sq ft) NIA
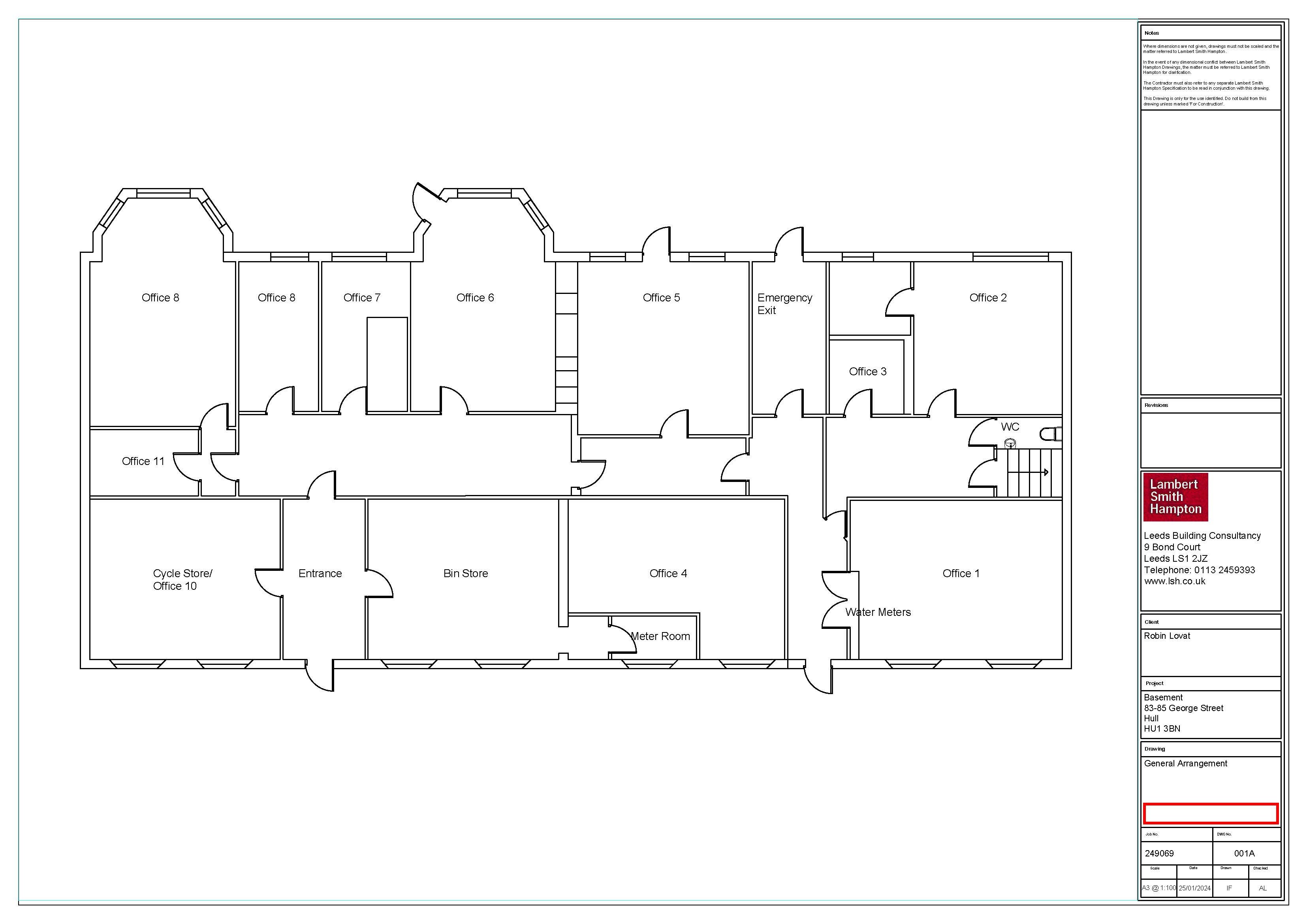
Description
A basement-level commercial premises located within a prominent Grade II Listed building in Hull city centre.
The property extends to approximately 235 sq m (2,522 sq ft) (NIA) and comprises various office spaces, both larger open-plan and single-person rooms and storage.
There are two front entrance doors, the first one is a shared entrance which leads to a cycle store and bin store, not included in the sale but forming part of the apartments above.
The other entrance door further along the front elevation has its own direct access to the office accommodation. The building retains a number of interesting features with some areas having original York stone flooring. The offices have fluorescent lighting and perimeter electrical trunking to some rooms.
There is a rear courtyard area, paved in York stone, with 12 original storage units.
Location
The property forms part of the basement of a landmark building situated on George Street within Hull City Centre.
This is a mixed use commercial, educational and residential area, a short distance from the main shopping areas and close to public car parking.
Hull is a university city. It has a resident population of around 260,000 people with a wider catchment area.
Tenure
The property is held by way of a ground lease expiring on 15 November 2133 at a peppercorn ground rent. There is a service charge for contribution to the repair and maintenance of the main building, which is currently approximately £2,000 per annum.
Planning Authority
Hull City Council - www.hull.gov.uk
Bidder Registration
Registration for bidding will close at 2:00 pm the day before the auction, after which we cannot guarantee giving you permission to bid at the auction.
VAT
Refer to the legal documentation
Energy Performance Certificate
EPC - D:82
Accommodation
| Address | Accommodation | Sq M | Sq Ft |
|---|---|---|---|
| Basement | Office 1 | 36.70 | 395 |
| Basement | Office 2 | 18.80 | 202 |
| Basement | Office 3 | 6.30 | 68 |
| Basement | Office 4 | 27.10 | 292 |
| Basement | Office 5 | 30.80 | 332 |
| Basement | Office 6 | 31.50 | 339 |
| Basement | Office 7 | 9.40 | 101 |
| Basement | Office 8 | 11.90 | 128 |
| Basement | Office 9 | 46.80 | 504 |
| Basement | Office 10 | 32.90 | 354 |
| Basement | Communal Space | 18.77 | 202 |
Contact
* Generally speaking Guide Prices are provided as an indication of each seller's minimum expectation, i.e. 'The Reserve'. They are not necessarily figures which a property will sell for and may change at any time prior to the auction. Virtually every property will be offered subject to a Reserve (a figure below which the Auctioneer cannot sell the property during the auction) which we expect will be set within the Guide Range or no more than 10% above a single figure Guide.
** If you take up this service, Dynamo may pay a referral payment of up to 20% of the procuration fee received by Dynamo from the relevant lender on completion of the mortgage to us. This is not paid by you and has no impact on the service provided. Dynamo is a trading name of Dynamo Mortgages Limited, which is part of the same group of companies as Lambert Smith Hampton, owned by Connells Limited.
If you take up this service you will agree your own separate contract with Dynamo, and Lambert Smith Hampton is not responsible for the accuracy, quality or suitability of any advice, recommendations or services provided to you.
Loading the bidding panel...
The successful purchaser will be required to pay the auctioneers administration fee of £1,800 inclusive of VAT on purchases of £20,000 and above and £600 inclusive of VAT for purchases below £20,000. Other additional costs/fees may apply - Click here.
Office Contact
Related Documents
Agreement Documents
Additional Documents
Finance Available **
Make an enquirySubject to Contract and Exclusive of VAT © Lambert Smith Hampton February 2026
Disclaimer: Lambert Smith Hampton Group Limited and its subsidiaries, including LSH Property Auctions, and their joint agents if any (“LSH”) for themselves and for the seller or landlord of the property whose agents they are give notice that: (i) These particulars are given and any statement about the property is made without responsibility on the part of LSH or the seller or landlord and do not constitute the whole or any part of an offer or contract. (ii) Any description, dimension, distance or area given or any reference made to condition, working order or availability of services or facilities, fixtures or fittings, any guarantee or warrantee or statutory or any other permission, approval or reference to suitability for use or occupation, photograph, plan, drawing, aspect or financial or investment information or tenancy and title details or any other information set out in these particulars or otherwise provided shall not be relied on as statements or representations of fact or at all and any prospective buyer or tenant must satisfy themselves by inspection or otherwise as to the accuracy of all information or suitability of the property. (iii) No employee of LSH has any authority to make or give any representation or warranty arising from these particulars or otherwise or enter into any contract whatsoever in relation to the property in respect of any prospective purchase or letting including in respect of any re-sale potential or value or at all. (iv) Price or rent may be subject to VAT and any prospective buyer or tenant must satisfy themselves concerning the correct VAT position. (v) Except in respect of death or personal injury caused by the negligence of LSH or its employees or agents, LSH will not be liable, whether in negligence or otherwise howsoever, for any loss arising from the use of these particulars or any information provided in respect of the property save to the extent that any statement or information has been made or given fraudulently by LSH. (vi) In the case of new development or refurbishment prospective buyers or tenants should not rely on any artists’ impressions or architects’ drawings or specification or scope of works or amenities, infrastructure or services or information concerning views, character or appearance and timing concerning availability or occupation and prospective buyers or tenants must take legal advice to ensure that any expectations they may have are provided for direct with the seller or landlord and LSH shall have no liability whatsoever concerning any variation or discrepancy in connection with such matters.
By setting a proxy bid, the system will automatically bid on your behalf to maintain your position as the highest bidder, up to your proxy bid amount. If you are outbid, you will be notified via email so you can opt to increase your bid if you so choose.
If two of more users place identical bids, the bid that was placed first takes precedence, and this includes proxy bids.
Another bidder placed an automatic proxy bid greater or equal to the bid you have just placed. You will need to bid again to stand a chance of winning.