2 & 4 Catchment Cottages, Hampstead Lane, Yalding, Maidstone, Kent, ME18 6HL
Guide Price* : £650,000 plus
TWO COTTAGES AND ASSOCIATED LAND FOR SALE ON BEHALF OF THE ENVIRONMENT AGENCY
- Two Residential Three Bedroom Cottages and Associated Land
- Income Producing Investment of £21,840 Per Annum
- Totaling Approximately 121 sq m (1,302 sq ft) GIA
- On a Site of Approximately 0.272 Hectares (0.671 Acres)
Addendum
The rent increase took effect in November 2022, not 1 September 2012 as previously published.
The property is on a site of approximately 0.272 hectares (0.671 acres).
Description
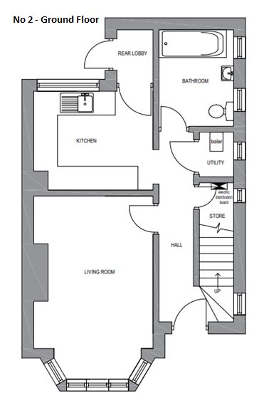
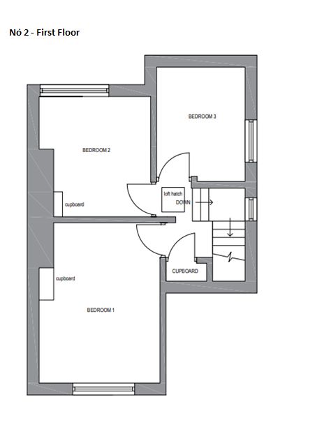
2 Catchment Cottage is a two storey semi detached dwelling comprising a living room, kitchen, three bedrooms and bathroom with gardens. The internal accommodation extends to approximately 60 sq m (646 sq ft). The property is let on a Protected Tenancy at a rent of £210.00 per week (£910.00 pcm/£10,920 per annum) effective November 2022.
4 Catchment Cottage is a two storey semi detached dwelling comprising a living room, kitchen, three bedrooms and bathroom with gardens. The internal accommodation extends to approximately 61 sq m (657 sq ft). The property is let on a Protected Tenancy at a rent of £210.00 per week (£910.00 pcm/£10,920 per annum) effective November 2022.
The properties are on a site of approximately 0.272 hectares (0.671 acres).
Location
The properties are situated within Yalding in Kent on Hampstead Lane which are located close to Hampstead Marina and Lock, with access to local amenities as well as direct access to local transport links.
Yalding is a desirable village between East Peckham and West Farleigh. It has a good range of local facilities including a village shop, a post office, a small library, a doctors surgery, pubs, primary school and a number of comprehensive and grammar schools in both Maidstone and Tonbridge.
The properties are located ½ a mile from Yalding station on the Medway Valley Line, which connects to London via Paddock Wood, and to Maidstone West. Maidstone town centre is 6 miles away and Paddock Wood, 5 miles away, with additional shopping outlets and direct trains to London Bridge in 45 minutes.
Junction 4 of the M20 provides easy access, linking with all the other motorway networks.
Tenure
The properties are held on one Freehold Title under Title Number K951259.
Tenancy
2 Catchment Cottage: The property is let on a Protected Tenancy at a rent of £210.00 per week (£910.00 pcm/£10,920 per annum) effective November 2022. The tenant has been in occupation since 1 November 1979.
4 Catchment Cottage: The property is let on a Protected Tenancy at a rent of £210.00 per week (£910.00 pcm/£10,920 per annum) effective November 2022. The tenant has been in occupation since 08 December 1977.
Planning Authority
Maidstone Borough Council - www.maidstone.gov.uk
Bidder Registration
Registration for bidding will close at 2:00 pm the day before the auction, after which we cannot guarantee giving you permission to bid at the auction.
VAT
Refer to the legal documentation
Energy Performance Certificate
2 Catchment Cottage EPC: C70
4 Catchment Cottage EPC: C69
Note
The Auctioneer has not internally inspected the properties. The information and floor plans have been provided by the Vendor.
Contact
Vendor's solicitor
* Generally speaking Guide Prices are provided as an indication of each seller's minimum expectation, i.e. 'The Reserve'. They are not necessarily figures which a property will sell for and may change at any time prior to the auction. Virtually every property will be offered subject to a Reserve (a figure below which the Auctioneer cannot sell the property during the auction) which we expect will be set within the Guide Range or no more than 10% above a single figure Guide.
** If you take up this service, Dynamo may pay a referral payment of up to 20% of the procuration fee received by Dynamo from the relevant lender on completion of the mortgage to us. This is not paid by you and has no impact on the service provided. Dynamo is a trading name of Dynamo Mortgages Limited, which is part of the same group of companies as Lambert Smith Hampton, owned by Connells Limited.
If you take up this service you will agree your own separate contract with Dynamo, and Lambert Smith Hampton is not responsible for the accuracy, quality or suitability of any advice, recommendations or services provided to you.
Loading the bidding panel...
The successful purchaser will be required to pay the auctioneers administration fee of £1,800 inclusive of VAT on purchases of £20,000 and above and £600 inclusive of VAT for purchases below £20,000. Other additional costs/fees may apply - Click here.
Local Authority
Office Contact
Vendors Solicitor
Agreement Documents
Additional Documents
Finance Available **
Make an enquirySubject to Contract and Exclusive of VAT © Lambert Smith Hampton October 2025
Disclaimer: Lambert Smith Hampton Group Limited and its subsidiaries, including LSH Property Auctions, and their joint agents if any (“LSH”) for themselves and for the seller or landlord of the property whose agents they are give notice that: (i) These particulars are given and any statement about the property is made without responsibility on the part of LSH or the seller or landlord and do not constitute the whole or any part of an offer or contract. (ii) Any description, dimension, distance or area given or any reference made to condition, working order or availability of services or facilities, fixtures or fittings, any guarantee or warrantee or statutory or any other permission, approval or reference to suitability for use or occupation, photograph, plan, drawing, aspect or financial or investment information or tenancy and title details or any other information set out in these particulars or otherwise provided shall not be relied on as statements or representations of fact or at all and any prospective buyer or tenant must satisfy themselves by inspection or otherwise as to the accuracy of all information or suitability of the property. (iii) No employee of LSH has any authority to make or give any representation or warranty arising from these particulars or otherwise or enter into any contract whatsoever in relation to the property in respect of any prospective purchase or letting including in respect of any re-sale potential or value or at all. (iv) Price or rent may be subject to VAT and any prospective buyer or tenant must satisfy themselves concerning the correct VAT position. (v) Except in respect of death or personal injury caused by the negligence of LSH or its employees or agents, LSH will not be liable, whether in negligence or otherwise howsoever, for any loss arising from the use of these particulars or any information provided in respect of the property save to the extent that any statement or information has been made or given fraudulently by LSH. (vi) In the case of new development or refurbishment prospective buyers or tenants should not rely on any artists’ impressions or architects’ drawings or specification or scope of works or amenities, infrastructure or services or information concerning views, character or appearance and timing concerning availability or occupation and prospective buyers or tenants must take legal advice to ensure that any expectations they may have are provided for direct with the seller or landlord and LSH shall have no liability whatsoever concerning any variation or discrepancy in connection with such matters.
By setting a proxy bid, the system will automatically bid on your behalf to maintain your position as the highest bidder, up to your proxy bid amount. If you are outbid, you will be notified via email so you can opt to increase your bid if you so choose.
If two of more users place identical bids, the bid that was placed first takes precedence, and this includes proxy bids.
Another bidder placed an automatic proxy bid greater or equal to the bid you have just placed. You will need to bid again to stand a chance of winning.